Etažnost: P+1, neto stanovanjska površina: 186,24 m2, objekt skupaj: 228,18 m2
Tip strehe: ravna, naklon strehe: 35°

Luksuzna hiša za štiri člansko družino, ki s prekrivajočima volumnoma tvori in oblikuje kvalitetne in uporabne zunanje površine. V varno zavetje umeščena terasa, nadkrita parkirna prostora in razgleden prostor za razvajanje na ravni strehi so nekateri izmed njih.
| 1 | Vhod in hodnik | 12,72 m2 |
| 2 | Bivalni prostor | 44,93 m2 |
| 3 | Knjižnica | 9,90 m2 |
| 4 | Kabinet | 9,36 m2 |
| 5 | Utility in tehnika | 15,48 m2 |
| 6 | Sanitarije | 1,70 m2 |
| 7 | Shramba | 6,97 m2 |
| 8 | Zunanja shramba* | 5,79 m2 |
| 9 | Pokriti parkirni mesti in vhod* | 36,15 m2 |
| *površina ni upoštevana | ||
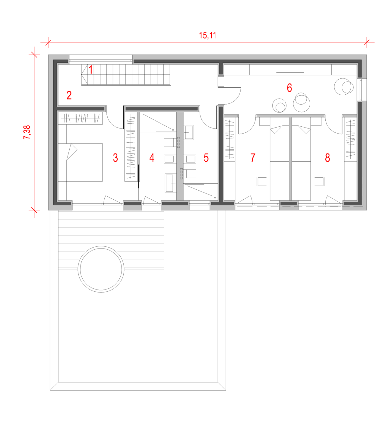
| 1 | Stopnišče | 5,13 m2 |
| 2 | Hodnik | 10,78 m2 |
| 3 | Spalnica | 15,78 m2 |
| 4 | Kopalnica starši | 7,34 m2 |
| 5 | Kopalnica | 6,87 m2 |
| 6 | Skupna soba | 14,98 m2 |
| 7 | Soba | 12,15 m2 |
| 8 | Soba | 12,15 m2 |